
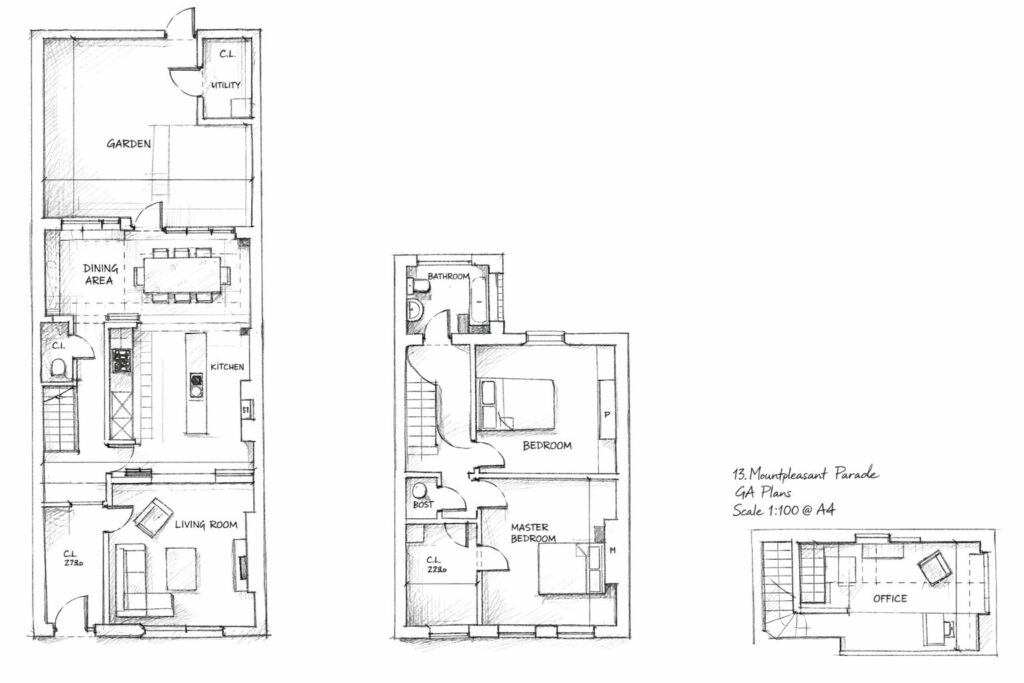
For this house in Ranelagh, we carried out a measured survey to accurately record the existing building, capturing its proportions, structure, and key architectural features. These drawings provide a reliable base for design development, planning applications, and construction, ensuring that all future interventions are informed, precise, and sensitive to the character of the home.
